2805 Ocoee Apopka Road 12, APOPKA, FL 32703
Active
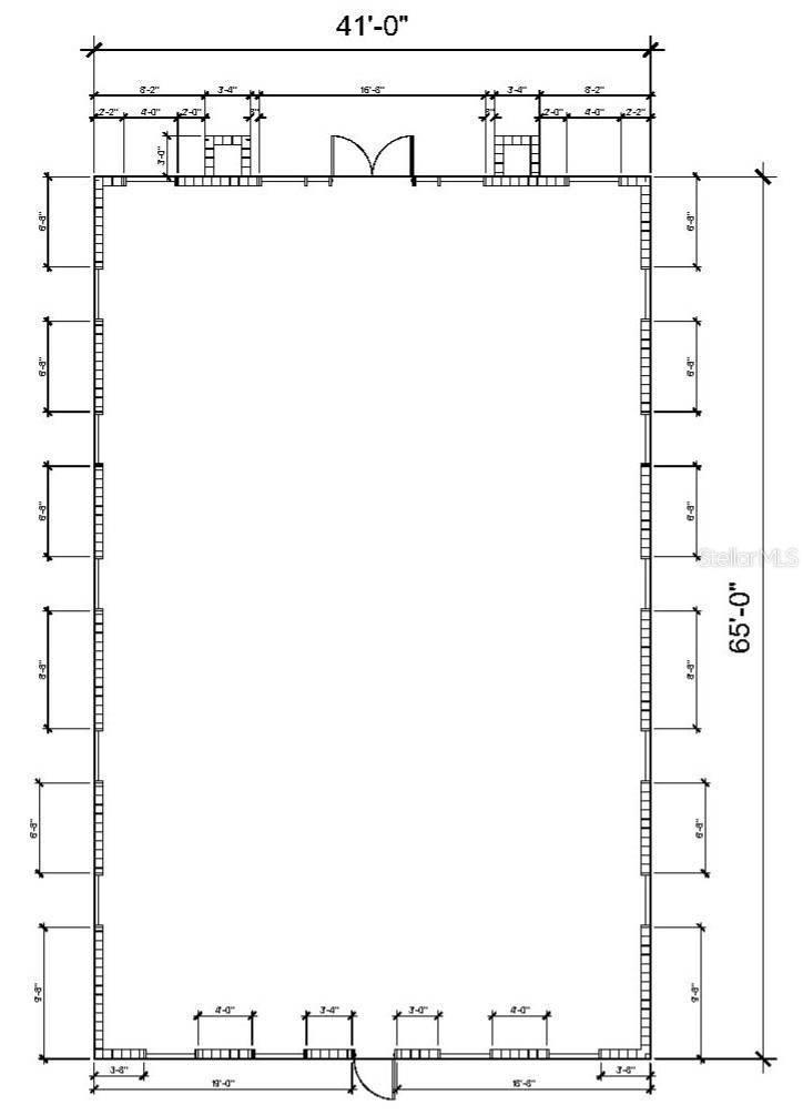
Property Photos
Would you like to sell your home before you purchase this one?
Priced at Only: $910,000
For more Information Call:
Address: 2805 Ocoee Apopka Road 12, APOPKA, FL 32703
Property Location and Similar Properties
- MLS#: O6300796 ( Commercial Sale )
- Street Address: 2805 Ocoee Apopka Road 12
- Viewed: 5
- Price: $910,000
- Price sqft: $341
- Waterfront: No
- Year Built: 2025
- Bldg sqft: 2665
- Days On Market: 254
- Additional Information
- Geolocation: 28.6387 / -81.539
- County: ORANGE
- City: APOPKA
- Zipcode: 32703
- Provided by: THE MARKS GROUP REALTY, LLC
- Contact: Wyatt Marks
- 352-432-8678

- DMCA Notice
-
DescriptionUnder Construction. Building #12 is available for purchase at Lake Carter Exchange, a distinguished mixed use development in Apopkas East Shore at the intersection of Ocoee Apopka Road and W Keene Road. This dark gray shell building is ideal for medical or professional offices, with potential for retail use based on buyer needs. The shell delivery offers full flexibility for custom interior design. The development is strategically located less than one mile from Advent Healths seven story, 120 bed hospital and opposite a new Publix Supermarket development. Situated in the vibrant East Shore trade area, which includes 5,000 planned residences and an average household income above $100k, this Class A property is perfectly positioned for businesses targeting growth in Central Floridas second fastest growing city. Contact us for pricing details/incentives and to schedule a tour of this exceptional commercial opportunity.
Payment Calculator
- Principal & Interest -
- Property Tax $
- Home Insurance $
- HOA Fees $
- Monthly -
Features
Building and Construction
- Covered Spaces: 0.00
- Living Area: 0.00
- Roof: Metal
Property Information
- Property Condition: Under Construction
Garage and Parking
- Garage Spaces: 0.00
- Open Parking Spaces: 0.00
Eco-Communities
- Water Source: Public
Utilities
- Carport Spaces: 0.00
- Cooling: None
- Electric: Three Phase
- Road Frontage Type: County Road
- Sewer: Public Sewer
- Utilities: Public, Underground Utilities
Finance and Tax Information
- Home Owners Association Fee: 0.00
- Insurance Expense: 0.00
- Net Operating Income: 0.00
- Other Expense: 0.00
- Tax Year: 2025
Other Features
- Country: US
- Legal Description: LAKE CARTER EXCHANGE COMMERCIAL CONDOMINIUM A LANDSITE CONDOMINIUM 20240689475 UNIT 12
- Levels: One
- Area Major: 32703 - Apopka
- Parcel Number: 29-21-28-4376-12-000
- Unit Number: 12
Similar Properties
Nearby Subdivisions
- Eddie Otton, ABR,Broker,CIPS,GRI,PSA,REALTOR ®,e-PRO
- Mobile: 407.427.0880
- eddie@otton.us










