806 25th Street, SANFORD, FL 32771
Active
Property Photos
Would you like to sell your home before you purchase this one?
Priced at Only: $450,000
For more Information Call:
Address: 806 25th Street, SANFORD, FL 32771
Property Location and Similar Properties
- MLS#: O6376426 ( Commercial Sale )
- Street Address: 806 25th Street
- Viewed: 5
- Price: $450,000
- Price sqft: $221
- Waterfront: No
- Year Built: 1952
- Bldg sqft: 2037
- Days On Market: 7
- Additional Information
- Geolocation: 28.7869 / -81.2612
- County: SEMINOLE
- City: SANFORD
- Zipcode: 32771
- Subdivision: Phillips Terrace
- Provided by: DIVERSIFIED REALTY HOLDINGS

- DMCA Notice
-
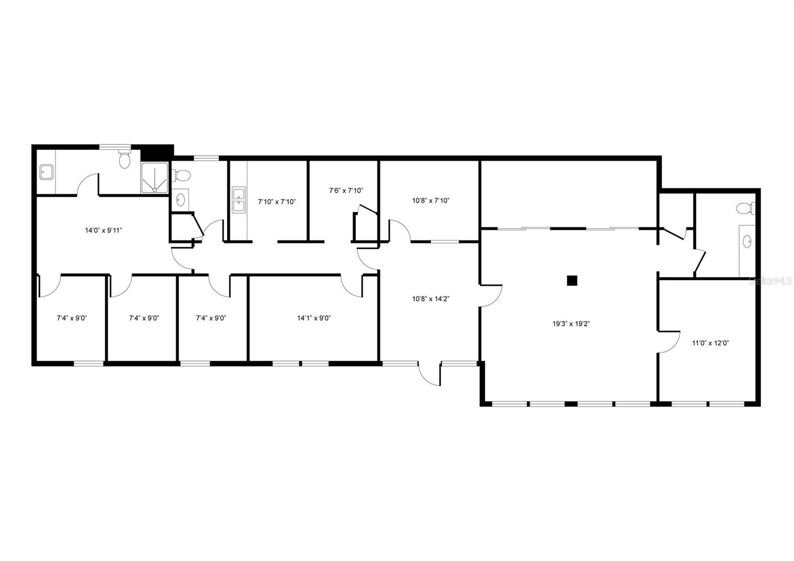
DescriptionExcellent Office Opportunity! Prime Location & Fully Furnished Office Space! Ideal location for Learning Center or Pre School as it was previously used as a Tutoring Center. Would also be a great set up for Professional/Medical Services. 2037 SF Freestanding Concrete Block Building w/Shingle Roof (New 2024). 7 Designated Parking spaces in the front. Building is currently set up with (6) Offices, (1) Large Option Work Area, Reception Area, File/Storage Room (3) Bathrooms, Kitchen, and Open Space. Located 5 minutes from Sanford Airport. Close to Highway 417 and within 10 minutes of Interstate 4. CALL TODAY! All Realtor information is presumed correct but not guaranteed including dimensions, zoning, uses and description. Buyer and buyer's agent to verify all information.
Payment Calculator
- Principal & Interest -
- Property Tax $
- Home Insurance $
- HOA Fees $
- Monthly -
Features
Building and Construction
- Covered Spaces: 0.00
- Flooring: Carpet, Ceramic Tile, Laminate
- Living Area: 2037.00
- Roof: Shingle
Garage and Parking
- Garage Spaces: 0.00
- Open Parking Spaces: 0.00
- Parking Features: Parking Spaces - 6 to 12
Eco-Communities
- Water Source: Public
Utilities
- Carport Spaces: 0.00
- Cooling: Central Air
- Heating: Central
- Road Frontage Type: County Road
- Sewer: Public Sewer
- Utilities: BB/HS Internet Capable, Phone Available, Public
Finance and Tax Information
- Home Owners Association Fee: 0.00
- Insurance Expense: 0.00
- Net Operating Income: 0.00
- Other Expense: 0.00
- Tax Year: 2025
Other Features
- Appliances: Dishwasher, Microwave
- Country: US
- Legal Description: LOT 18 PHILLIPS TERRACE PB 8 PG 59
- Levels: One
- Area Major: 32771 - Sanford/Lake Forest
- Occupant Type: Vacant
- Parcel Number: 31-19-31-519-0000-0180
- Zoning Code: RMOI
Similar Properties
- Eddie Otton, ABR,Broker,CIPS,GRI,PSA,REALTOR ®,e-PRO
- Mobile: 407.427.0880
- eddie@otton.us











































